Choice Line
Select Line
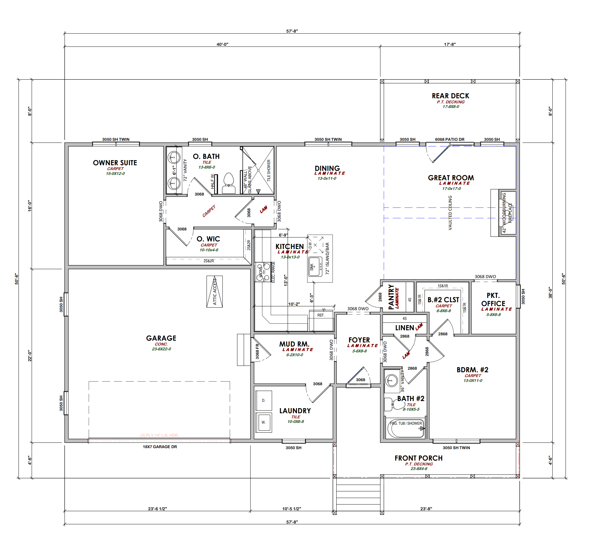
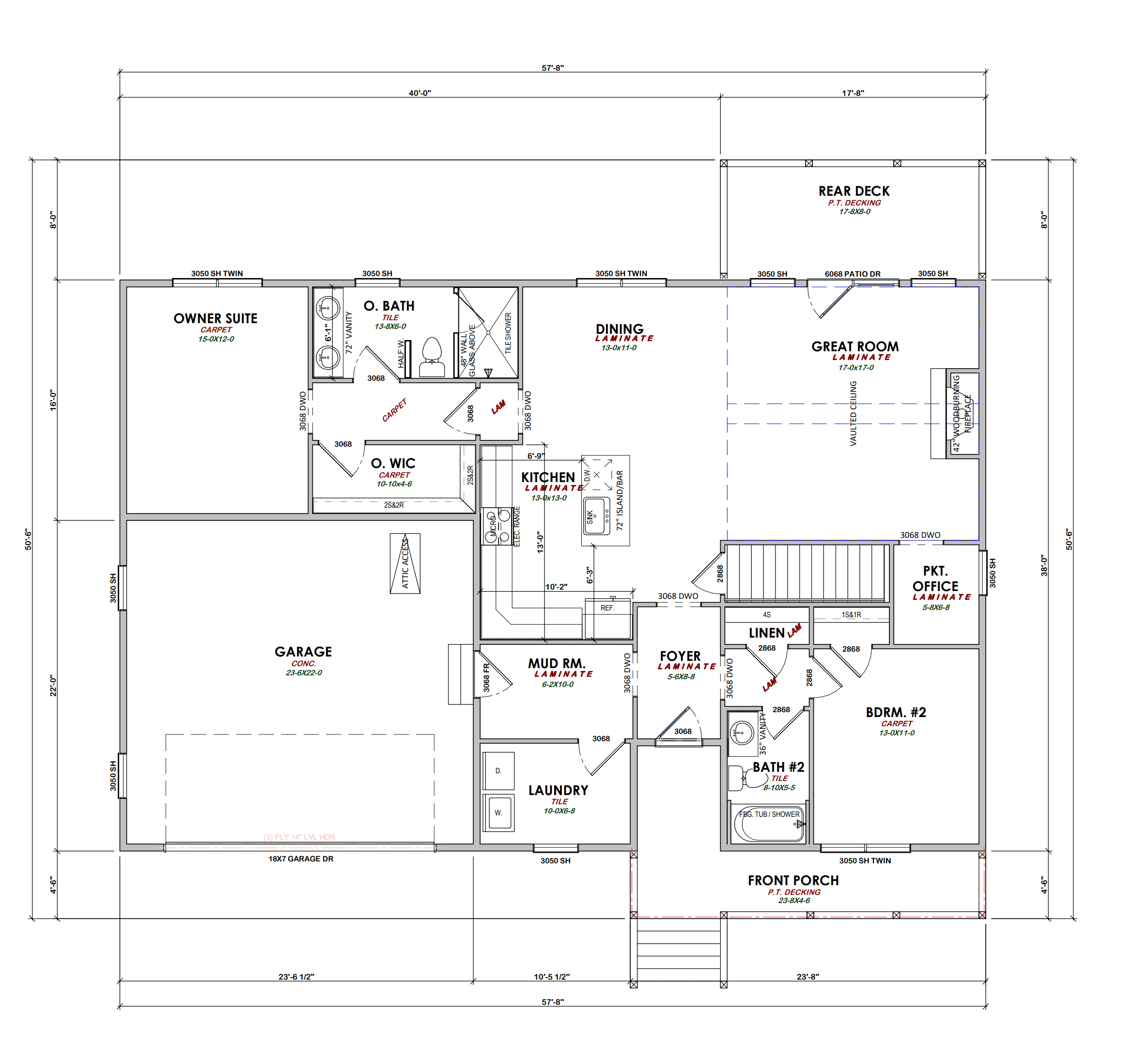
The BlueRidge features a spacious yet cozy floor plan with a foyer entry connected to a vaulted great room. The back deck opens off of the great room creating a perfect space for entertaining and enjoying the beautiful lake and mountain views. It has a convenient pocket office, too! The oversized two-car garage provides convenient access to the kitchen through the laundry and mud room. The BlueRidge has 2 bedrooms and 2 baths located in separate areas of the home in order to provide peace and quiet to assure that every family member has their own space. The private Owner’s Suite contains a roomy walk-in closet with a spacious bathroom located across the hall. Take a look at the virtual tour and floor plan above to see all the wonderful features that our BlueRidge provides!
Choice Line
$285,710
$285,710
$285,710
$285,710
$285,710
$285,710
$284,639
$284,639
$285,187
$291,855
$286,674
$293,874
$288,413
$289,879
$291,660
$292,360
$263,931
$263,931
$263,931
$263,931
$263,931
$263,931
$263,931
$263,931
$263,931
$263,931
$263,931
$263,931
$306,514
$290,892
$290,892
$292,112
$295,149
$295,149
$295,753
$295,753
$295,753
$295,753
$295,753
$295,753
$295,753
$295,753
$304,412
$324,778
$324,778
$324,778
$324,778
$324,778
$319,273
$320,327
$320,480
$321,688
$321,908
$324,040
$325,249
$325,763
$327,466
$327,741
$357,256
$304,585
$304,585
$304,585
$304,585
$304,585
$304,585
$304,585
$304,585
$304,585
Select Line
$341,759
$341,759
$341,759
$341,759
$341,759
$341,759
$340,476
$340,476
$341,131
$349,109
$342,912
$351,524
$344,992
$347,577
$349,711
$349,711
$366,642
$329,244
$329,244
$329,244
$329,244
$329,244
$329,244
$329,244
$329,244
$329,244
$329,244
$329,244
$329,244
$362,877
$343,898
$364,284
$343,898
$343,898
$343,898
$343,898
$343,898
$364,916
$365,140
$343,898
$343,898
$367,467
$366,762
$377,164
$377,164
$377,164
$377,164
$377,164
$382,821
$384,084
$384,270
$385,716
$385,981
$388,537
$389,985
$390,603
$392,646
$392,976
$414,880
$365,210
$365,210
$365,210
$365,210
$365,210
$365,210
$365,210
$365,210
$365,210
Additional investment required for land & site development
Additional investment required for land & site development
ELEVATIONS AVAILABLE
FLOOR PLAN LAYOUTS
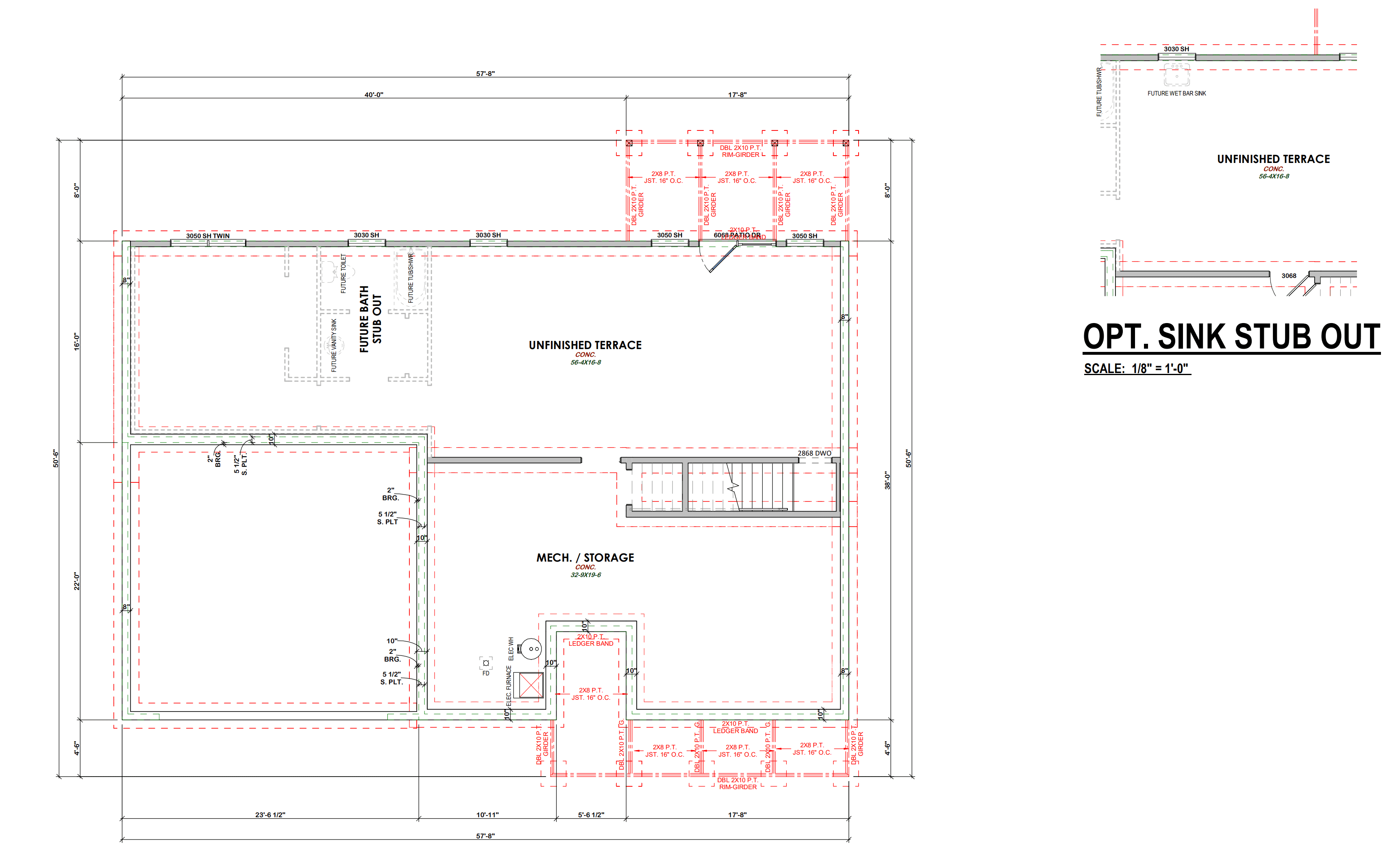
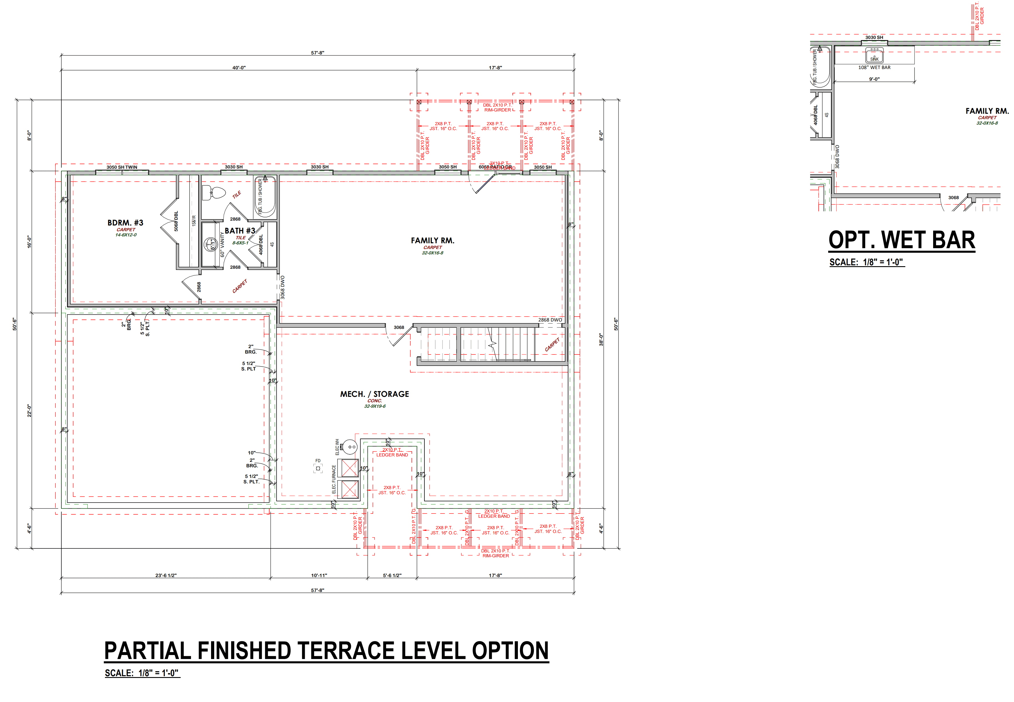
*Images above may include items that are an additional investment. Check with your New Home Specialist for more info.







































