
Shenandoah
1,759
SQFT
3
Bed
2
Bath
2
Car Garage
Shenandoah
1,759
SQFT
3
Bed
2
Bath
2
Car Garage
Shenandoah
1,759
SQFT
3
Bed
2
Bath
2
Car Garage
Choice Line
Select Line
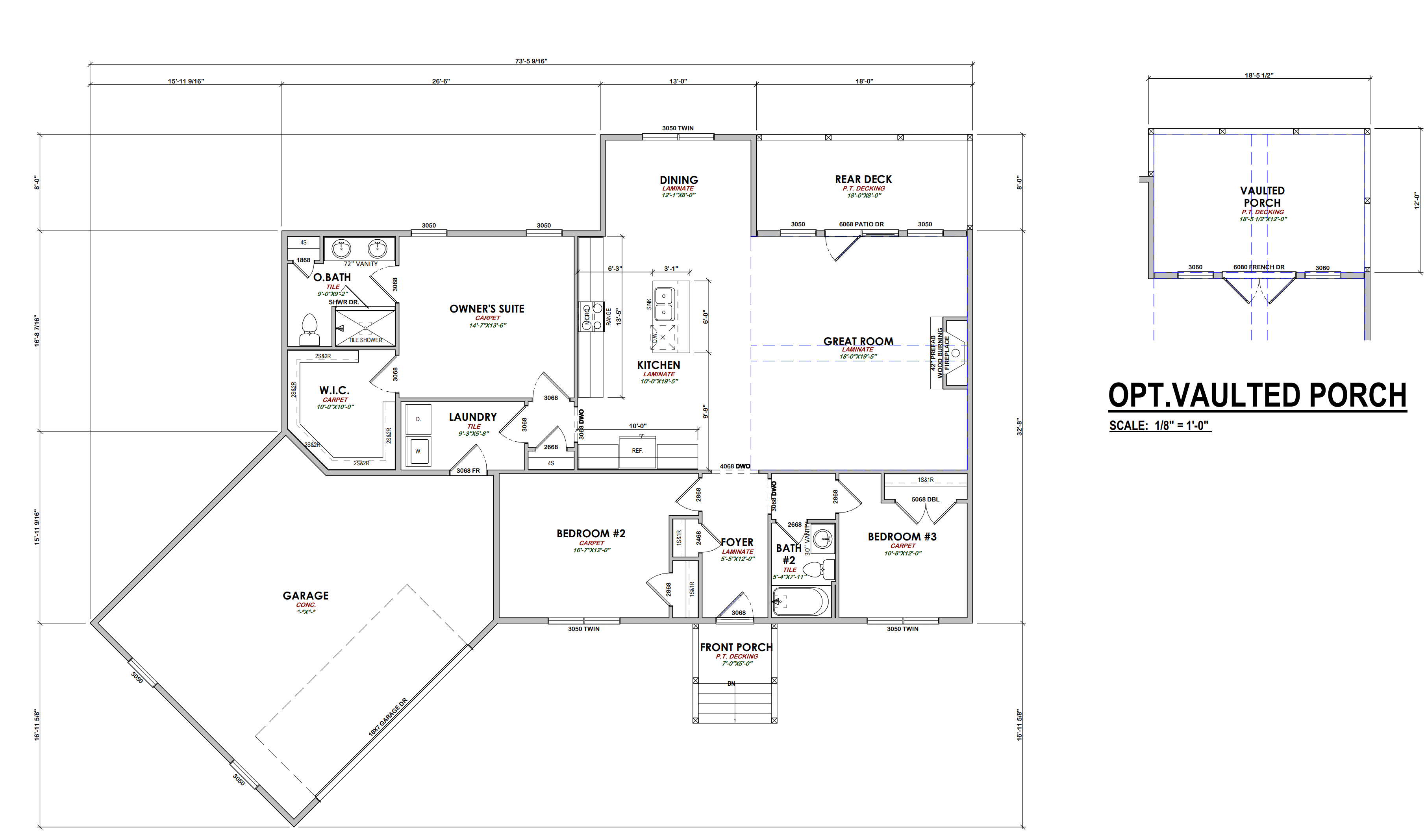
The Shenandoah features a spacious yet cozy floor plan! This home has an open floor plan with a dining space that connects to the kitchen with an included island that is perfect for entertaining or breakfast with the family. The Shenandoah has 2 bathrooms and 3 bedrooms which includes a secluded Owner' suite with a spacious walk-in closet and bathroom. The two-car garage is connected to the laundry room which leads into a hall connecting to both the Owner's suite and the kitchen space. The Shenandoah has the perfect blend of functional spaces with high-end touches! *Optional terrace level available
The Shenandoah features a spacious yet cozy floor plan! This home has an open floor plan with a dining space that connects to the kitchen with an included island that is perfect for entertaining or breakfast with the family. The Shenandoah has 2 bathrooms and 3 bedrooms which includes a secluded Owner' suite with a spacious walk-in closet and bathroom. The two-car garage is connected to the laundry room which leads into a hall connecting to both the Owner's suite and the kitchen space. The Shenandoah has the perfect blend of functional spaces with high-end touches! *Optional terrace level available
The Shenandoah features a spacious yet cozy floor plan! This home has an open floor plan with a dining space that connects to the kitchen with an included island that is perfect for entertaining or breakfast with the family. The Shenandoah has 2 bathrooms and 3 bedrooms which includes a secluded Owner' suite with a spacious walk-in closet and bathroom. The two-car garage is connected to the laundry room which leads into a hall connecting to both the Owner's suite and the kitchen space. The Shenandoah has the perfect blend of functional spaces with high-end touches! *Optional terrace level available
Choice Line
$275,459
$275,459
$275,459
$275,459
$275,459
$275,459
$281,383
$278,372
$278,372
$278,372
$279,314
$281,321
$287,133
$282,935
$285,361
$285,361
$299,483
$284,349
$267,825
$267,825
$267,825
$267,825
$267,825
$267,825
$267,825
$267,825
$267,825
$267,825
$267,825
$267,825
$287,991
$287,991
$287,991
$287,991
$287,991
$287,991
$295,184
$295,184
$287,991
$287,991
$296,273
$299,503
$299,503
$318,865
$318,865
$318,865
$318,865
$318,865
$313,460
$313,460
$313,592
$314,373
$316,434
$319,180
$319,198
$319,479
$319,849
$319,912
$350,752
$297,218
$297,218
$297,218
$297,218
$297,218
$297,218
$297,218
$297,218
$297,218
Select Line
$329,497
$329,497
$329,497
$329,497
$329,497
$329,497
$336,583
$332,980
$332,980
$332,980
$334,107
$336,509
$344,284
$339,251
$341,342
$341,342
$359,092
$320,361
$320,361
$320,361
$320,361
$320,361
$320,361
$320,361
$320,361
$320,361
$320,361
$320,361
$320,361
$353,086
$334,872
$334,872
$334,872
$334,872
$334,872
$334,872
$355,436
$334,872
$334,872
$357,660
$358,257
$358,257
$356,955
$370,297
$370,297
$370,297
$370,297
$370,297
$375,851
$375,851
$376,010
$376,946
$379,418
$382,710
$382,732
$383,067
$383,512
$383,588
$407,327
$356,377
$356,377
$356,377
$356,377
$356,377
$356,377
$356,377
$356,377
$356,377
Additional investment required for land & site development
Additional investment required for land & site development
ELEVATIONS AVAILABLE

Craftsman Elevation

Mountain Elevation

Farmhouse Elevation

Craftsman Elevation

Mountain Elevation

Farmhouse Elevation
*Images above may include items that are an additional investment. Check with your New Home Specialist for more info.
Reviews
Reviews
Norma Caskey
Dawsonville, GA
I've been in my house for a year now (2024) and I love this house more today than the day I moved in. I've had workers to my home that comment on the quality and workmanship of my house. NOTHING has gone wrong nor would I change anything! The icing on the cake is Chris Hiatt (my main contact) plus the Dawsonville team headed up by Titan and Kristy. So happy I have this home ❤️
Mike Walker
Anderson, SC
We chose Brown Haven to build our home on Lake Keowee and continue to be extremely satisfied with their finished product. The entire process of selecting a model, identifying customizations, adjusting to changes, getting regular updates with pictures, and completion of the construction went very well. We highly recommend Brown Haven as the builder of your home.
James Tuck
Hiawassee, GA
"Our experience with Brown Haven Homes has been top shelf... From the design meeting to construction, everything was flawless! As someone in the industry, this was the easiest build I've ever experienced. Weekly updates with photos gave us peace of mind and saved us trips to the site. Thank you, Brown Haven Homes, for our new happy place!"
Jay Pennington
Asheville, NC
Brow Haven Homes just finished our new home at Lake James in NC. The Asheville office did a great job for us. We started with one of their floorplans. We were able to customize it to fit our needs. The house was finished in budget. The price is the price. It also turned out beautiful. We broke ground in early March and finished at the end if October.
Jay Pennington
Asheville, NC
Brow Haven Homes just finished our new home at Lake James in NC. The Asheville office did a great job for us. We started with one of their floorplans. We were able to customize it to fit our needs. The house was finished in budget. The price is the price. It also turned out beautiful. We broke ground in early March and finished at the end if October.
James Tuck
Hiawassee, GA
"Our experience with Brown Haven Homes has been top shelf... From the design meeting to construction, everything was flawless! As someone in the industry, this was the easiest build I've ever experienced. Weekly updates with photos gave us peace of mind and saved us trips to the site. Thank you, Brown Haven Homes, for our new happy place!"
Mike Walker
Anderson, SC
We chose Brown Haven to build our home on Lake Keowee and continue to be extremely satisfied with their finished product. The entire process of selecting a model, identifying customizations, adjusting to changes, getting regular updates with pictures, and completion of the construction went very well. We highly recommend Brown Haven as the builder of your home.
Norma Caskey
Dawsonville, GA
I've been in my house for a year now (2024) and I love this house more today than the day I moved in. I've had workers to my home that comment on the quality and workmanship of my house. NOTHING has gone wrong nor would I change anything! The icing on the cake is Chris Hiatt (my main contact) plus the Dawsonville team headed up by Titan and Kristy. So happy I have this home ❤️
Your Smooth Journey to a Custom Home
Building your custom home should be a joyful and transparent experience, free from surprises and setbacks. Our Path to Ownership guides you through every step, ensuring a smooth process with no unexpected costs or delays. And Our Price Promise means that once we break ground, your price is locked in, guaranteeing peace of mind.

1
Choose Your Floorplan
Feeling overwhelmed by choices? Pick a starting point that aligns with your dreams, with expert guidance to make it easy.

2
Secure Your Homesite
Our Land Specialists will help you find the perfect site and guide you through the evaluation process.

3
Approve Your Purchase Agreement
Forget uncertain financial commitments and lock in your design and budget with our Price Promise.

4
Evaluate Your Land
Our team ensures your property is ready and optimized for your dream home design.

5
Secure Financing
We work with preferred lenders who provide competitive rates and personalized guidance.

6
Make Your Selections
Our Design Studio experience lets you choose everything from fixtures to finishes with expert advice.

7
Pre-Construction Meeting
Leave nothing to chance with a final meeting prior to breaking ground on your New Home.

8
Homeowner Orientation & Move-in
Our team will guide you through a final walkthrough, ensuring every detail is perfect before you move in.
Your Smooth Journey to a Custom Home
Building your custom home should be a joyful and transparent experience, free from surprises and setbacks. Our Path to Ownership guides you through every step, ensuring a smooth process with no unexpected costs or delays. And Our Price Promise means that once we break ground, your price is locked in, guaranteeing peace of mind.

1
Choose Your Floorplan
Feeling overwhelmed by choices? Pick a starting point that aligns with your dreams, with expert guidance to make it easy.

2
Secure Your Homesite
Our Land Specialists will help you find the perfect site and guide you through the evaluation process.

3
Approve Your Purchase Agreement
Forget uncertain financial commitments and lock in your design and budget with our Price Promise.

4
Evaluate Your Land
Our team ensures your property is ready and optimized for your dream home design.

5
Secure Financing
We work with preferred lenders who provide competitive rates and personalized guidance.

6
Make Your Selections
Our Design Studio experience lets you choose everything from fixtures to finishes with expert advice.

7
Pre-Construction Meeting
Leave nothing to chance with a final meeting prior to breaking ground on your New Home.

8
Homeowner Orientation & Move-in
Our team will guide you through a final walkthrough, ensuring every detail is perfect before you move in.
Your Smooth Journey to a Custom Home
Building your custom home should be a joyful and transparent experience, free from surprises and setbacks. Our Path to Ownership guides you through every step, ensuring a smooth process with no unexpected costs or delays. And Our Price Promise means that once we break ground, your price is locked in, guaranteeing peace of mind.

1
Choose Your Floorplan
Feeling overwhelmed by choices? Pick a starting point that aligns with your dreams, with expert guidance to make it easy.

2
Secure Your Homesite
Our Land Specialists will help you find the perfect site and guide you through the evaluation process.

3
Approve Your Purchase Agreement
Forget uncertain financial commitments and lock in your design and budget with our Price Promise.

4
Evaluate Your Land
Our team ensures your property is ready and optimized for your dream home design.

5
Secure Financing
We work with preferred lenders who provide competitive rates and personalized guidance.

6
Make Your Selections
Our Design Studio experience lets you choose everything from fixtures to finishes with expert advice.

7
Pre-Construction Meeting
Leave nothing to chance with a final meeting prior to breaking ground on your New Home.

8
Homeowner Orientation & Move-in
Our team will guide you through a final walkthrough, ensuring every detail is perfect before you move in.

















