Select Line
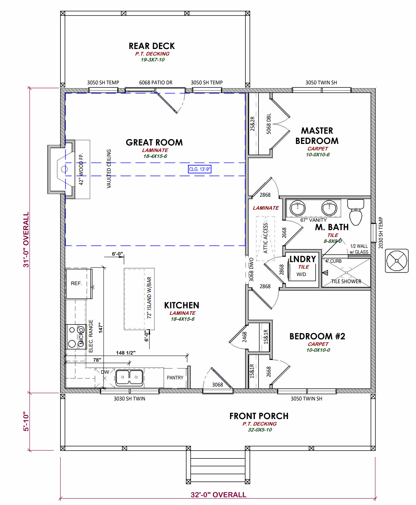
Whether you're looking to downsize, build your first home, need some extra space for in-laws, or even want to create some extra income with a second home rental property, the 984 sq. ft. Aspen floor plan is just what you're looking for! This simple and sweet home has all the necessities and is petite enough to fit on just about any lot! While this floor plan has a small foot print, you will feel anything but cramped once inside. With an open living space and a full sized kitchen with a large island, there is plenty of room for friends and family to gather. This floor plan gives a whole new meaning to enjoying the little things in life!
Select Line
$205,441
$205,441
$205,441
$205,441
$205,441
$205,441
$203,696
$204,449
$204,449
$204,449
$204,449
$209,860
$205,988
$207,041
$207,041
$211,311
$190,754
$190,754
$190,754
$190,754
$190,754
$190,754
$190,754
$190,754
$190,754
$190,754
$190,754
$190,754
$206,226
$220,399
$210,240
$210,240
$210,240
$209,468
$209,468
$209,468
$209,468
$209,468
$209,468
$209,468
$209,468
$213,316
$212,818
$216,537
$216,537
$216,537
$216,537
$216,537
$216,537
$216,537
$216,537
$216,537
$226,319
$226,319
$226,319
$231,876
$226,319
$229,713
$229,713
$230,043
$230,425
$231,876
$232,158
$234,639
$234,851
$235,615
$235,761
$248,950
Additional investment required for land & site development
Additional investment required for land & site development
ELEVATIONS AVAILABLE
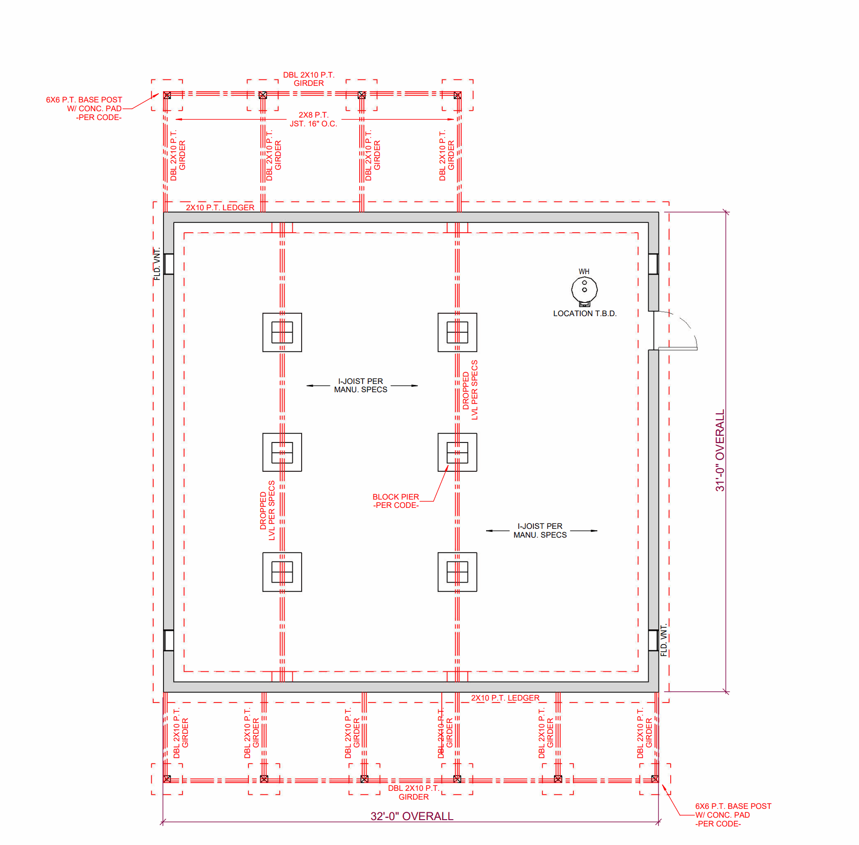
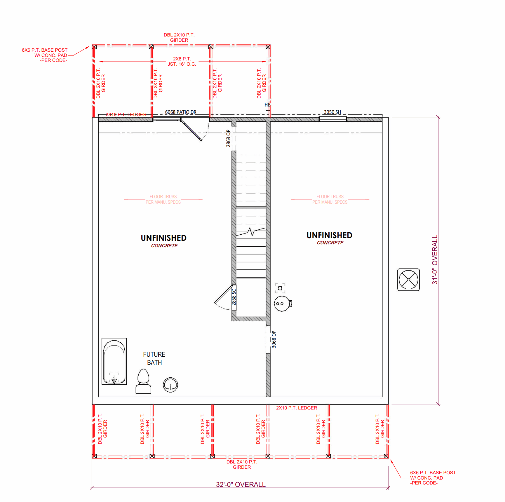
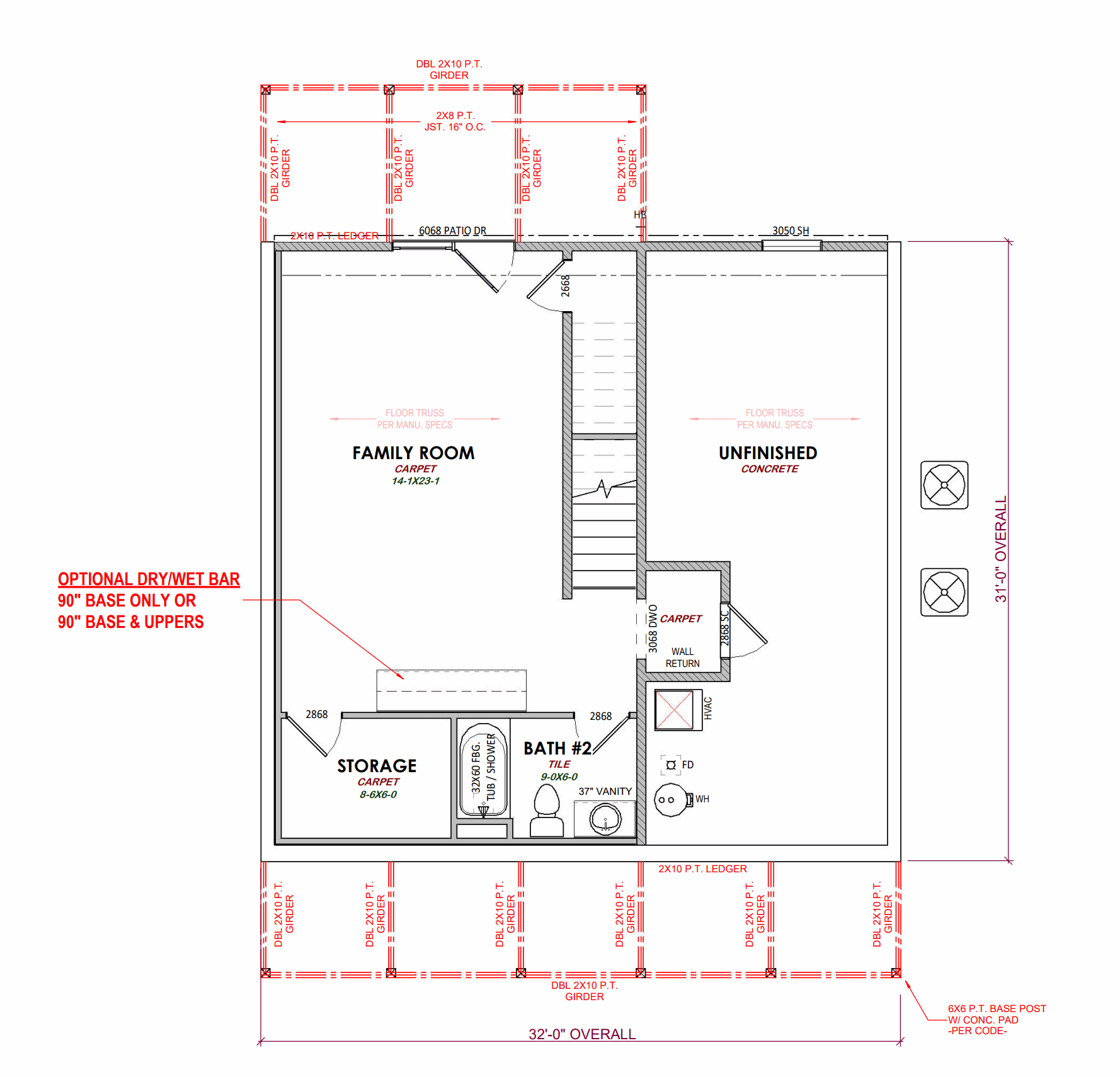
FLOOR PLAN LAYOUTS
*Images above may include items that are an additional investment. Check with your New Home Specialist for more info.









































